DA01 – Maison jardin urbaine

Xuan Trach, Commune Xuan Canh, District Dong Anh, Hanoi
Dong Anh
Monsieur Nguyen Doan
Esquisse, Concept, APD, PRO, EXE
Dynamic Architects Vietnam SARL Team: NGUYEN Hai Dang, DOAN Xuan Duong
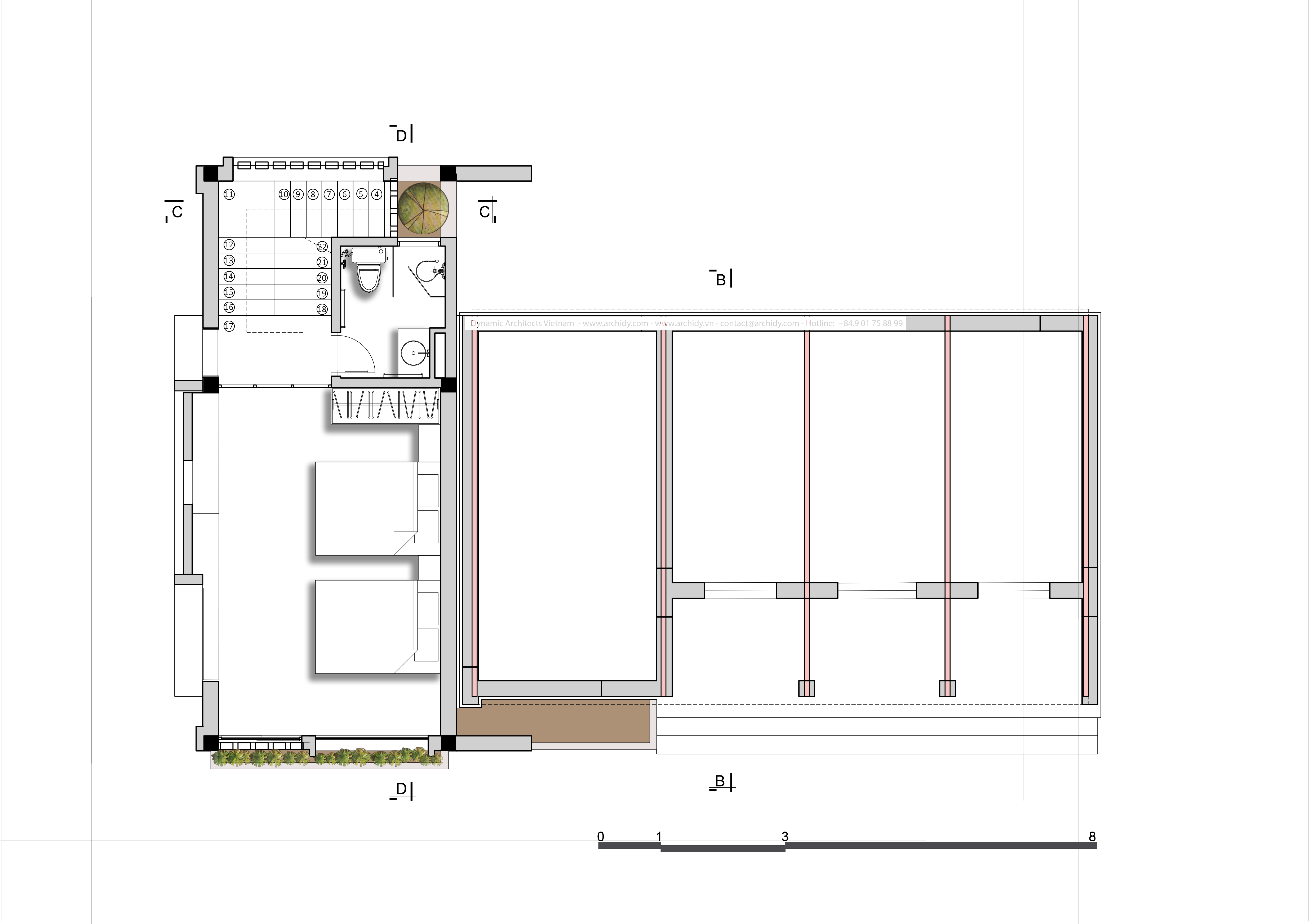
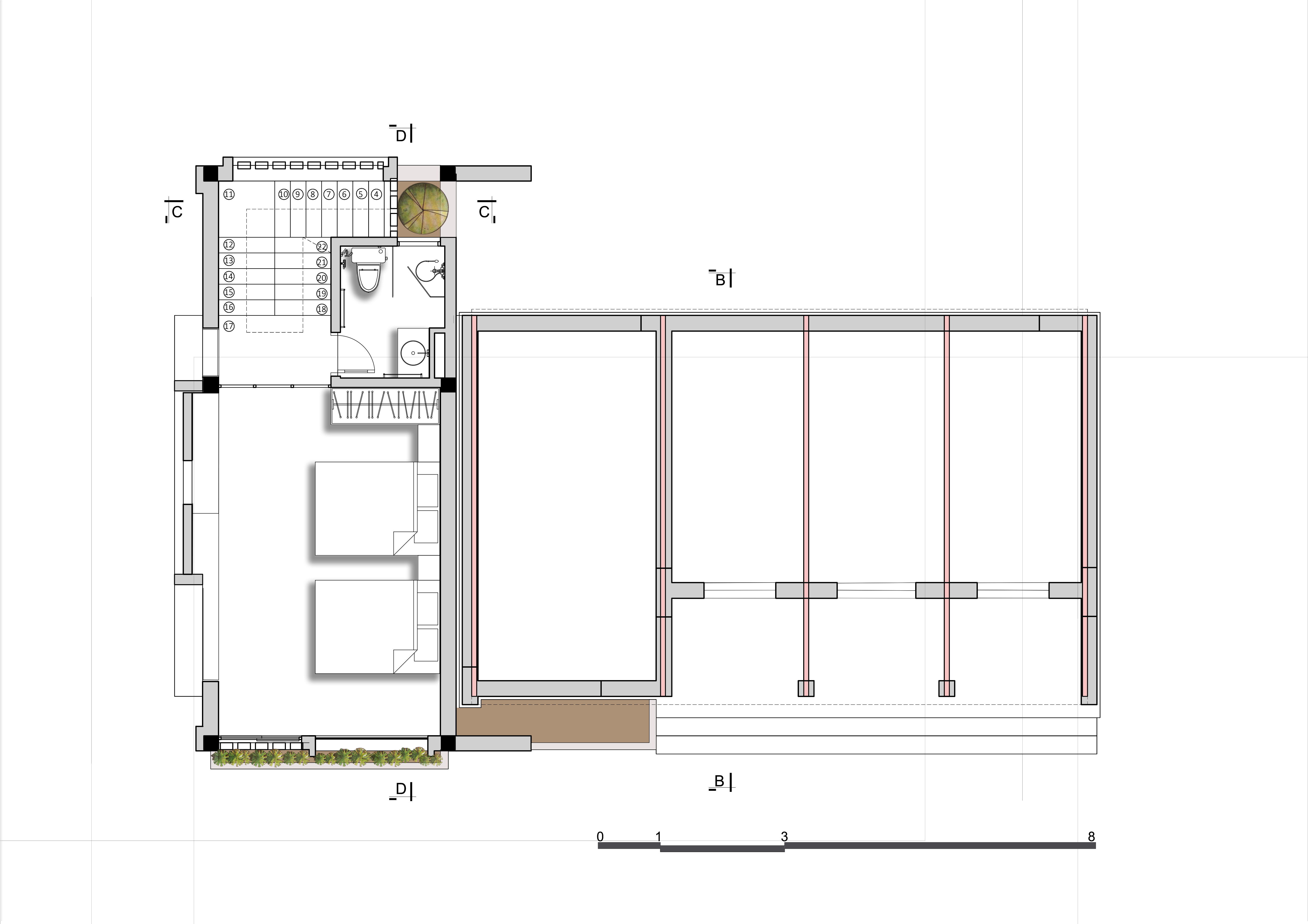
Espace commun, Cuisine, Salle à manger, salle de bain, 3 chambres
180m2
2018

Maison jardin urbaine ou Casa D

(L’architecture est création, l’architecture est innovation)

Est un projet de recherche de Dynamic Architecture Vietnam sur le plan de rénovation de la maison traditionnelle du peuple Kinh au nord du Vietnam. Avec l’idée de promouvoir l’identité architecturale de la maison traditionnelle du nord mais en répondant au mode de vie moderne du peuple vietnamien d’aujourd’hui. La science et la technologie ont permis d’éliminer les limitations existantes dans l’organisation de la maison vietnamienne telles que: Des cuisines séparées (éviter la fumée, éviter les incendies et la propagation, éviter les risques de rats, d’insectes et de mille-pattes), des toilettes séparées (pollution par les odeurs, eau ..) pour pouvoir se recombiner dans une construction unifiée. Le bâtiment a toutes les caractéristiques d’une maison moderne sans casser l’architecture traditionnelle. Une maison simple, avec un toit en tuiles, qui a une bonne dissipation thermique en été, a été adaptée avec de meilleurs systèmes de pare-brise en hiver. Des solutions de confort thermique ont également été étudiées par des architectes pour limiter les impacts des conditions météorologiques extrêmes dans le delta du fleuve Rouge.

Nguyen Hai Dang (architecte Nguyen)

Hosting của bạn đã hết hạn 15 ngày!

Vui lòng gia hạn hosting để tiếp tục sử dụng website.

Nếu bạn đã gia hạn, hãy liên hệ quản trị viên để cập nhật ngày hết hạn.